Ενεργειακό τζάκι καλοριφέρ La Nordica Focolare 80 Idro Crystal DSA 15,4kW
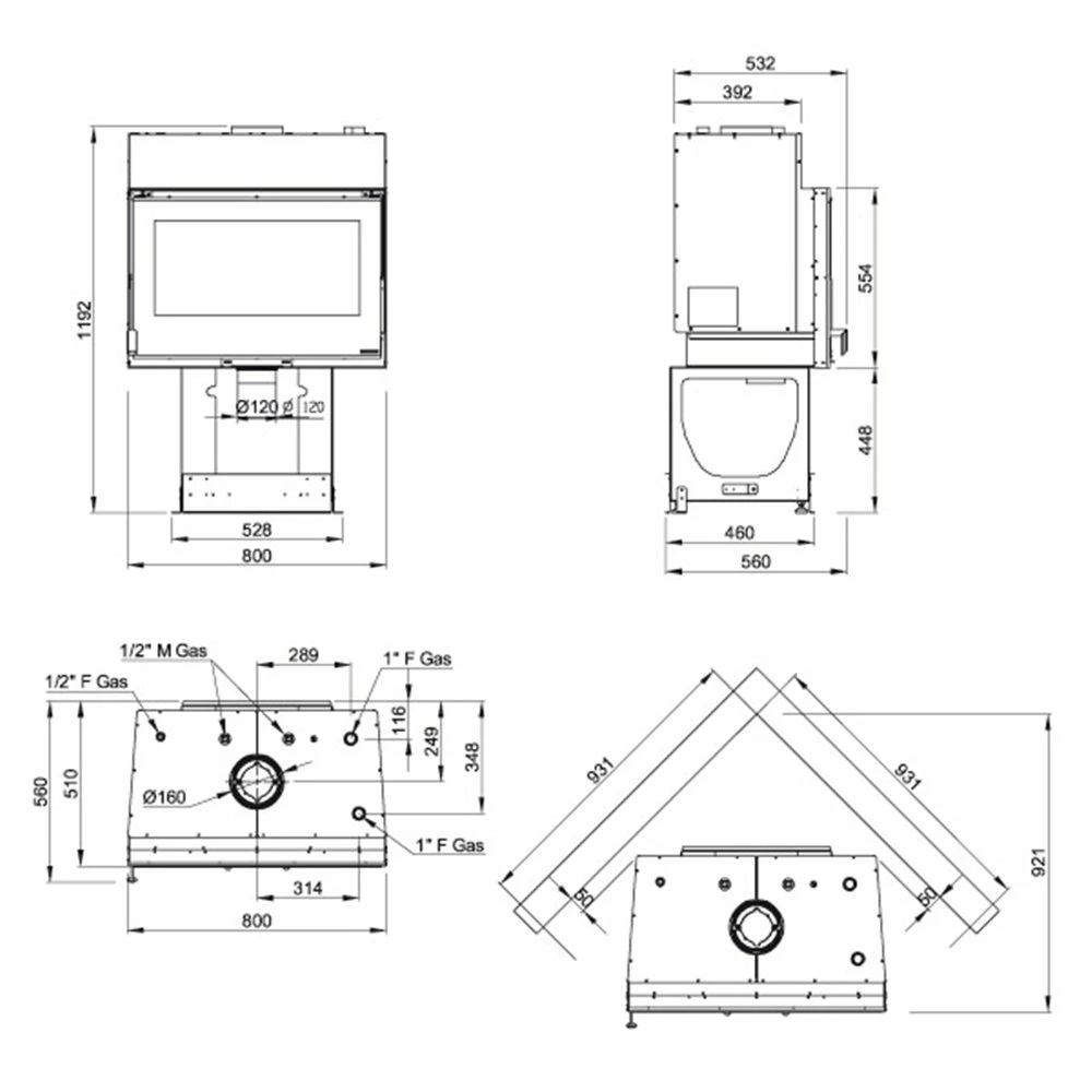
Το Focolare 80 Crystal Idro D.S.A., είναι ένα εντυπωσιακό ενεργειακό τζάκι καλοριφέρ, με ανοιγόμενη επίπεδη πόρτα. Η ισχύς της καύσης του φθάνει στα 15,4 kW που επαρκούν για την θέρμανση χώρων μέχρι και 441 κυβικά μέτρα. Έχει δοχείο στο κάτω μέρος του, όπου συλλέγεται η τέφρα, κάνοντας έτσι πιο εύκολη την απομάκρυνσή της. Το κρύσταλλο της πόρτας είναι πυρίμαχο κεραμικό 750°C και έχει περιμετρικά μεταξοτυπία. Η εστία έχει θωράκιση από Nordiker και μαντέμι. Μπορεί να τοποθετηθεί και με κλειστού τύπου δοχείο διαστολής, χάρη στο ενσωματωμένο σύστημα D.S.A. (σερπατίνα ψύξης).
Τεχνικά Χαρακτηριστικά
| Διαστάσεις (ΠxΥxΒ) | 800x1192x560mm |
| Βάρος | 178kg |
| Άνοιγμα Πόρτας (ΠxΥ) | 635x245mm |
| Διαστάσεις Εστίας (ΠxΥxΒ) | 590x320x360mm |
| Θερμαινόμενος Όγκος | 441m3 |
| Έξοδος Καυσαερίων | 160mm |
| Ελκυσμός | 17-20Pa |
| Είσοδος Αέρα Καύσης | 100mm |
| Υδραυλικές Συνδέσεις | 1″ Θ |
| Περιεχόμενο Λέβητα | 20lt |
| Υλικό Εστίας | Χάλυβας+Nordiker |
| Συνολική Θερμική Ισχύς | 18,6kW |
| Ωφέλιμη Θερμική Ισχύς | 15,4kW |
| Ισχύς στο Νερό | 11,1kW |
| Αποδοτικότητα | 82,7% |
| Κατανάλωση | 4,3kg/h |
| Πίεση Λειτουργίας | <3,0bar |























Αξιολογήσεις
Δεν υπάρχει καμία αξιολόγηση ακόμη.